Modern Farmhouse B2900-G
STUNNING 4-BEDROOM BARNDOMINIUM WITH BONUS ROOM & 3-CAR GARAGE
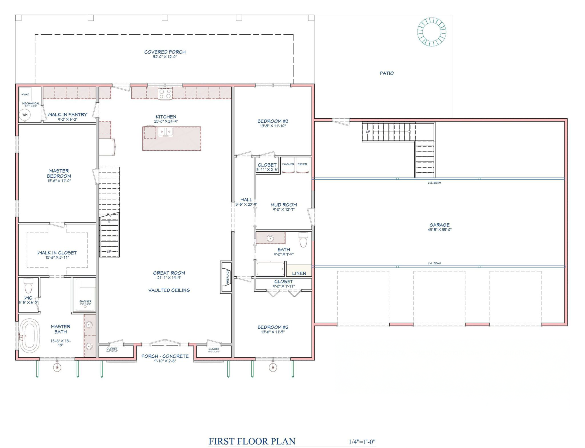
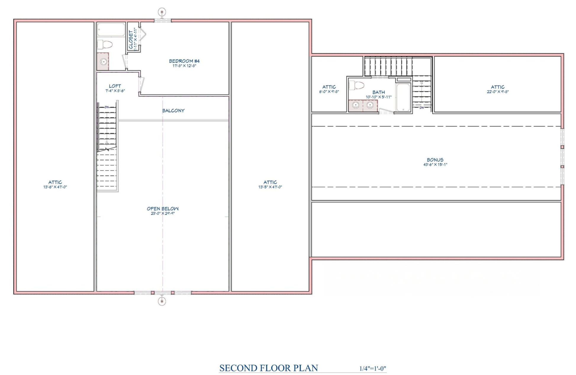
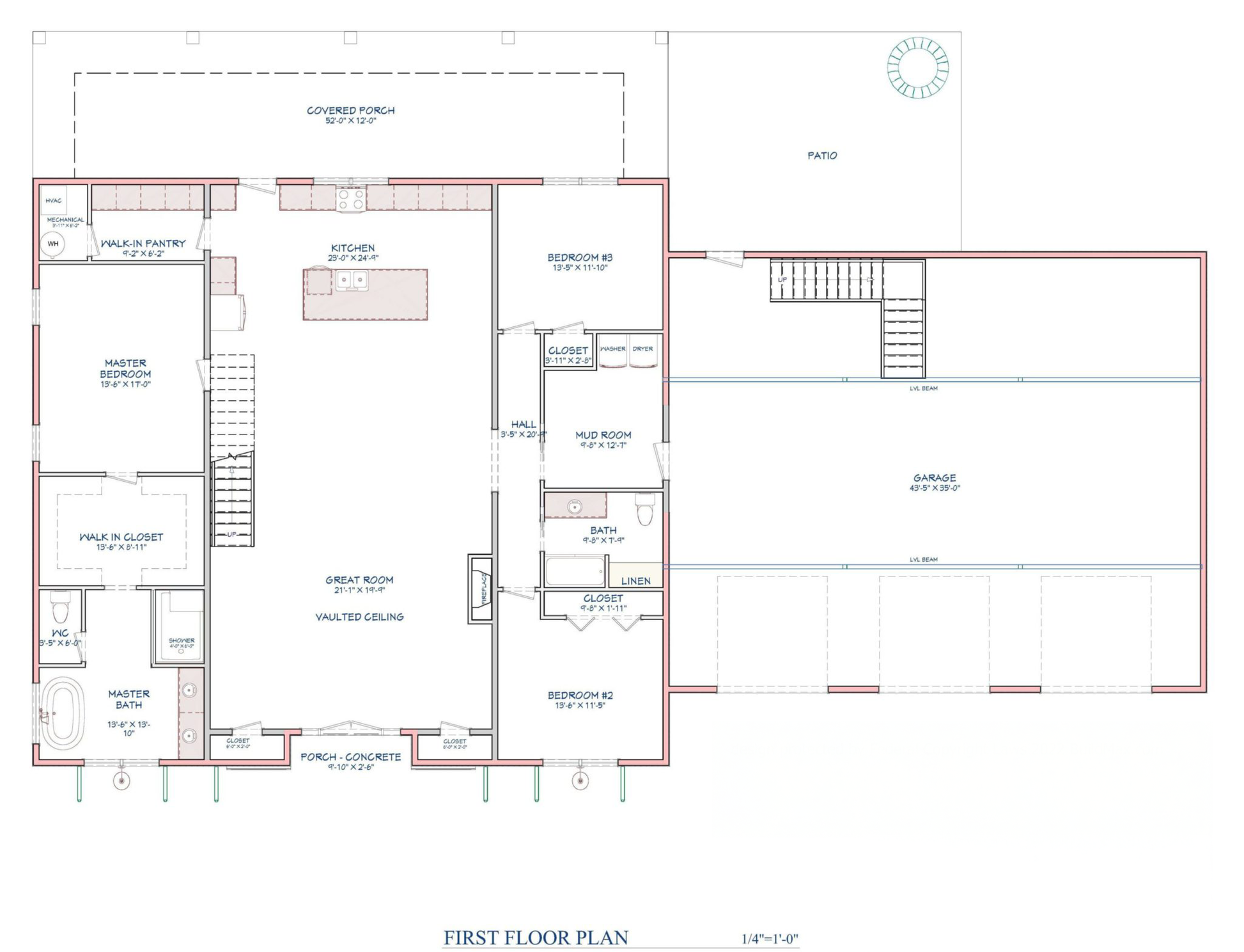
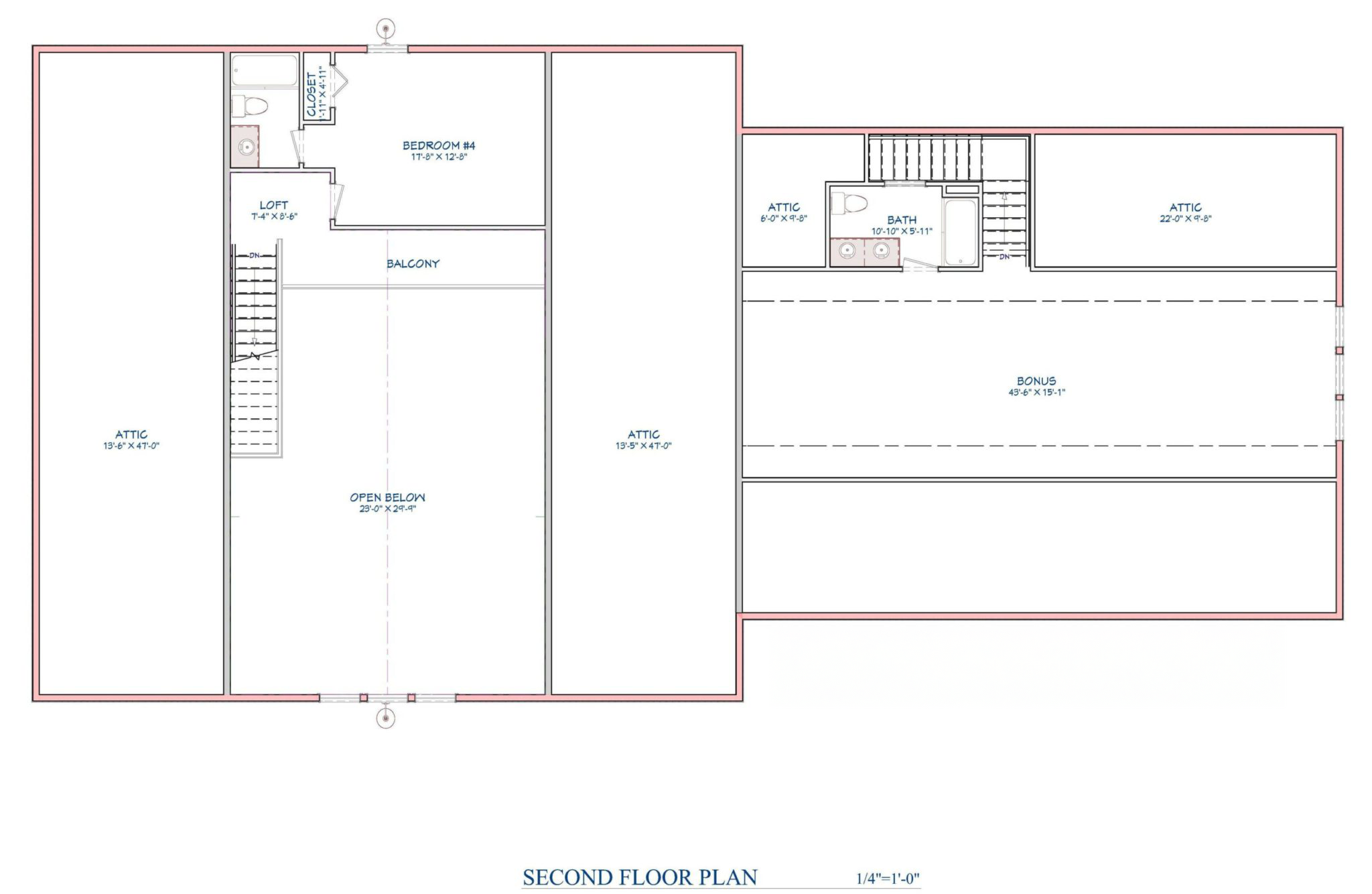
This beautifully designed barndominium showcases a dramatic two-story vaulted ceiling in the great room, creating an open and inviting atmosphere from the moment you step inside. A striking staircase leads to a private loft bedroom with a full bath, making it ideal for guests, teens, or a quiet retreat.
The main-level master suite is thoughtfully designed for comfort and relaxation, featuring a custom walk-in shower, double vanities, a freestanding soaking tub, and a spacious walk-in closet. The open-concept eat-in kitchen includes a large island, walk-in pantry, and convenient access to a covered grilling porch—perfect for outdoor entertaining and everyday living.
An attached 3-car garage adds impressive versatility, offering approximately 855 square feet of additional space that includes a bonus room, full bathroom, and bunkhouse area. This flexible layout makes the home well-suited for a growing family, multi-generational living, or those who simply want extra room without exceeding 3,000 square feet.
Blending functionality, style, and efficient use of space, this barndominium plan is an excellent option for families seeking a spacious yet manageable home. If you like this plan, take a look at our B2900. featuring a breezeway connecting the garage.
Add These to Your Plan
CAD FILES
Unlimited Build License
Plan Specifications
Plan Specifications
What's Included in This Plan?
- Digital download (PDF can be printed 24″X36″ full size)
- Floor Plan
- Roof Plan
- Front and Rear Elevation
- Right and Left Elevation
- Electrical & Plumbing Plan
- Foundation Plan
- Roof Framing Plan
- Second Floor I-Joist Plan
- Doors & Windows Schedule
What's Not Included?
House plans do not typically include mechanical, plumbing, or truss drawings. Additionally, some jurisdictions require a local architect or engineer to make adjustments to the plan to comply with local building codes.
We advise you to check with your local building department regarding codes. For more information, visit the "What Plans Include"page.