Barndominium Plan B2900
STUNNING 4-BEDROOM BLACK BARNDOMINIUM WITH BONUS ROOM
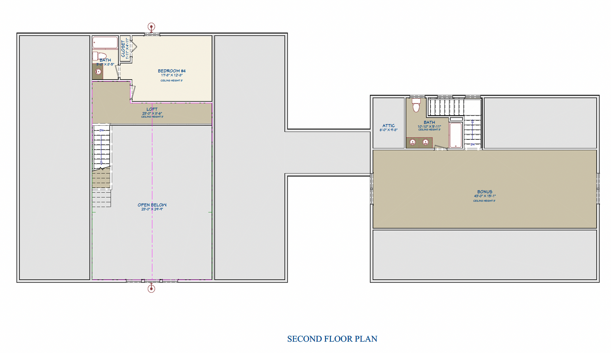
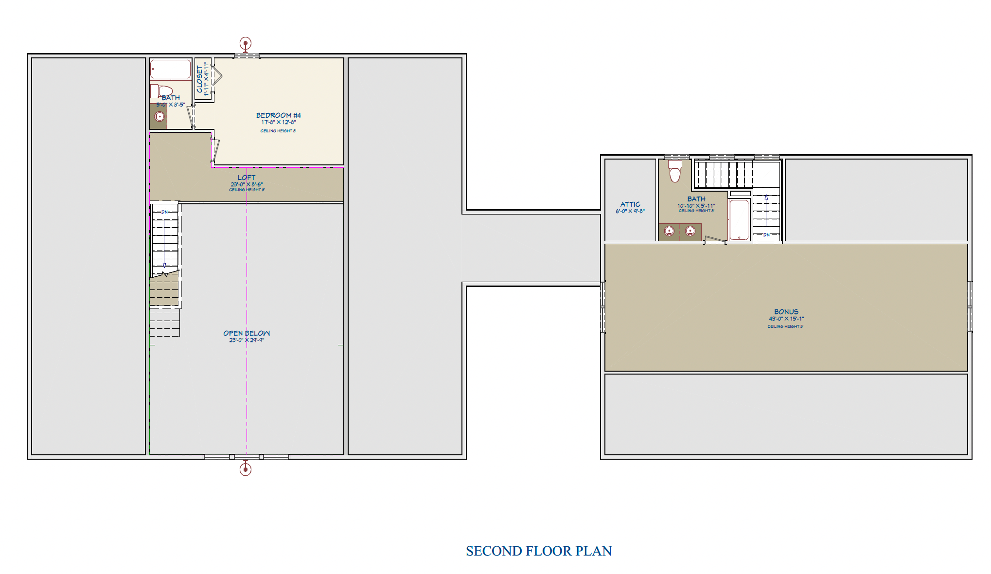
This striking black barndominium blends bold modern style with warm farmhouse comfort. The open great room features a soaring vaulted ceiling that creates a spacious, airy feel, while a beautiful staircase leads to a private loft bedroom complete with its own full bath—perfect for guests or older children.
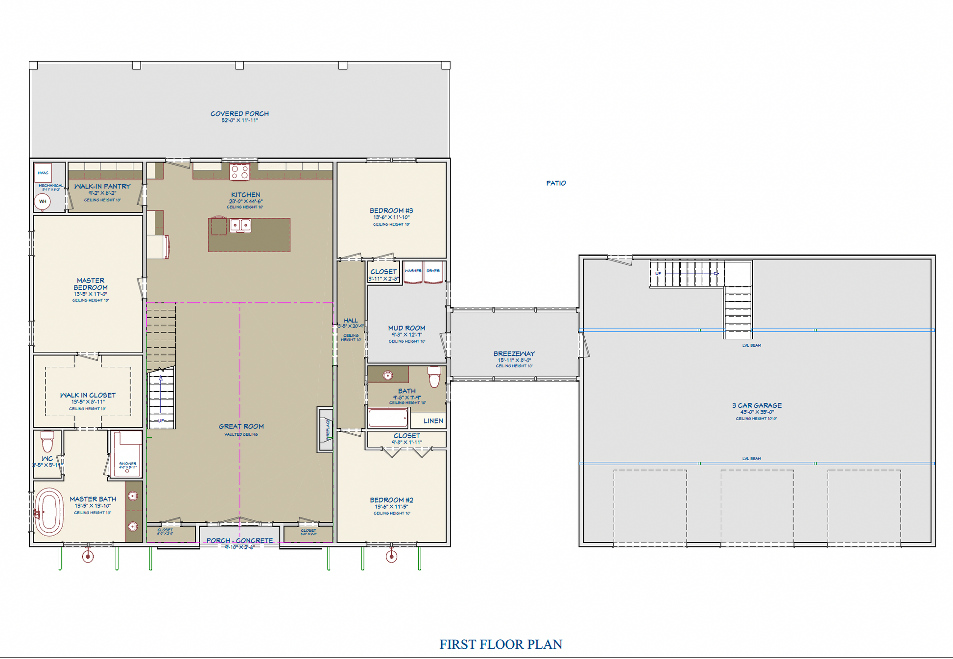
The first-floor master suite is a true retreat, featuring a luxurious freestanding tub, custom tile shower, double vanities, and a generously sized walk-in closet. The large, eat-in kitchen includes a walk-in pantry and direct access to a covered grilling porch—ideal for entertaining or enjoying quiet evenings outdoors.
A spacious mudroom connects the main living area to a full glass breezeway, leading to an oversized 3-car garage. Above the garage, you’ll find an additional 781 sq. ft. of bonus space with a bathroom and bunkhouse—offering the flexibility for a guest suite, game room, or home office.
Designed for families who need extra space and love open, connected living, this 4-bedroom barndominium perfectly balances elegance, function, and modern design.
What is the difference between stock, modified and custom plans?
1. Stock Plan Package
Stock plans are pre-designed house plans available for instant download. A Stock Plan includes everything you need to provide to your banker, material supplier, and builder.
Here is what is included:
- Digital Download (PDF can be printed 24"X 36" Full Size)
- One-time build license (permission to build one house from this plan)
- First Floor Plan
- Second Floor Plan (if applicable)
- Front and Rear 2D Elevations and Details
- Left and Right Side Elevations and Details
- Roof Plan Details
- First & Second Floor Electrical Plans (suggestive layout; final changes made with your local professional)
- First & Second Floor Plumbing Plans (suggestive layout; final changes made with your local professional)
- Footer & Foundation Detail Sheet
- Roof and Floor Joist Framing Detail Sheet
- Doors and Window Schedule
2. Modification Package
Any stock plan can be modified. This option allows for changes to the floor plan only. A modification package includes everything in the Stock Plan Package plus your requested changes. Changes that affect the foundation, roofline, window placement, or exterior elevations will require a redesign or custom quote.
3. Custom Plan Package
A custom plan is designed from scratch based on your ideas, sketches, or goals. You can share your vision in any form—whether it’s a quick sketch, a curated Pinterest board, or a detailed AI rendering of your dream home. Our team will collaborate with you to bring that vision to life at an affordable price. You have the freedom to start with one of our existing plans and modify it, or have a fully custom home designed from the ground up with your guidance every step of the way.
Custom Plan Package includes everything in the Stock Plan Package plus:
- 2 hours of floor plan consulting and review
- 5 hours of junior designer rough draft layout
- 2 revisions after the junior designer draft
- 15-hour block of time for a lead designer
- One-time build license
Add These to Your Plan
CAD FILES
Unlimited Build License
Plan Specifications
Plan Specifications
What's Included in This Plan?
- Digital download (PDF can be printed 24″X36″ full size)
- Floor Plan
- Roof Plan
- Front and Rear Elevation
- Right and Left Elevation
- Electrical & Plumbing Plan
- Foundation Plan
- Roof Framing Plan
- Second Floor I-Joist Plan
- Doors & Windows Schedule
What's Not Included?
House plans do not typically include mechanical, plumbing, or truss drawings. Additionally, some jurisdictions require a local architect or engineer to make adjustments to the plan to comply with local building codes.
We advise you to check with your local building department regarding codes. For more information, visit the "What Plans Include"page.