Barndominium Plan B2852
5-BEDROOM, 3.5-BATH BARNDOMINIUM
The B2852 Barndominium is a stunning family-sized home that blends timeless charm with modern functionality. Designed in a classic monitor-style layout, this barndo features wood accents, window awnings, and a welcoming covered front porch—making it equally at home in a suburban neighborhood or a peaceful country setting.
Step inside and you’re greeted by a soaring great room filled with natural light from multiple angles. The open-concept kitchen, dining, and living areas create a warm, inviting atmosphere that’s perfect for gatherings and family life. Sliding glass doors off the kitchen open to an impressive 14′ x 56′ covered porch, ideal for outdoor dining, entertaining, or simply enjoying the view.
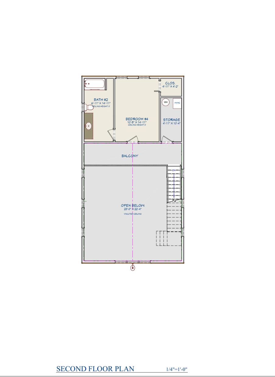
The first-floor master suite offers a private retreat complete with a freestanding soaking tub, custom shower, and spacious walk-in closet. Three additional bedrooms on the main level share a large bathroom with a triple-sink vanity, perfect for busy mornings. Upstairs, an open staircase leads to a balcony landing and a private bedroom with its own full bath—perfect for guests or older children.
With its high ceilings, bright open spaces, and thoughtful layout, the B2852 Barndominium is the ultimate home for a growing family or anyone who loves to entertain in style and comfort.
What is the difference between stock, modified and custom plans?
1. Stock Plan Package
Stock plans are pre-designed house plans available for instant download. A Stock Plan includes everything you need to provide to your banker, material supplier, and builder.
Here is what is included:
- Digital Download (PDF can be printed 24"X 36" Full Size)
- One-time build license (permission to build one house from this plan)
- First Floor Plan
- Second Floor Plan (if applicable)
- Front and Rear 2D Elevations and Details
- Left and Right Side Elevations and Details
- Roof Plan Details
- First & Second Floor Electrical Plans (suggestive layout; final changes made with your local professional)
- First & Second Floor Plumbing Plans (suggestive layout; final changes made with your local professional)
- Footer & Foundation Detail Sheet
- Roof and Floor Joist Framing Detail Sheet
- Doors and Window Schedule
2. Modification Package
Any stock plan can be modified. This option allows for changes to the floor plan only. A modification package includes everything in the Stock Plan Package plus your requested changes. Changes that affect the foundation, roofline, window placement, or exterior elevations will require a redesign or custom quote.
3. Custom Plan Package
A custom plan is designed from scratch based on your ideas, sketches, or goals. You can share your vision in any form—whether it’s a quick sketch, a curated Pinterest board, or a detailed AI rendering of your dream home. Our team will collaborate with you to bring that vision to life at an affordable price. You have the freedom to start with one of our existing plans and modify it, or have a fully custom home designed from the ground up with your guidance every step of the way.
Custom Plan Package includes everything in the Stock Plan Package plus:
- 2 hours of floor plan consulting and review
- 5 hours of junior designer rough draft layout
- 2 revisions after the junior designer draft
- 15-hour block of time for a lead designer
- One-time build license
Add These to Your Plan
CAD FILES
Unlimited Build License
Plan Specifications
Plan Specifications
What's Included in This Plan?
- Digital download (PDF can be printed 24″X36″ full size)
- Floor Plan
- Roof Plan
- Front and Rear Elevation
- Right and Left Elevation
- Electrical & Plumbing Plan
- Foundation Plan
- Roof Framing Plan
- Second Floor I-Joist Plan
- Doors & Windows Schedule
What's Not Included?
House plans do not typically include mechanical, plumbing, or truss drawings. Additionally, some jurisdictions require a local architect or engineer to make adjustments to the plan to comply with local building codes.
We advise you to check with your local building department regarding codes. For more information, visit the "What Plans Include"page.