Barndominium Plan B2500
STUNNING 2,630 SQ. FT. BARNDOMINIUM WITH 3-CAR GARAGE
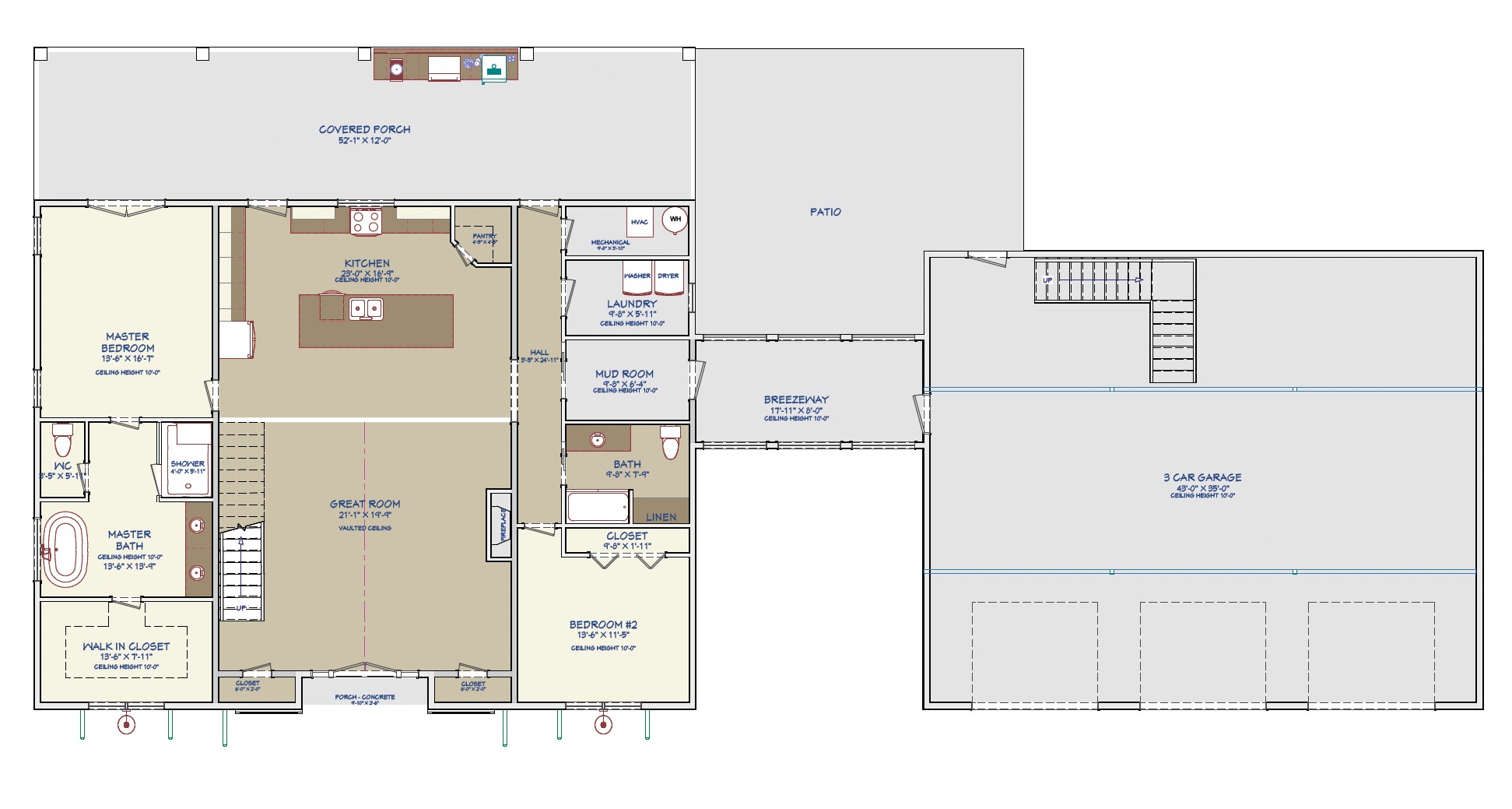
This striking barndominium design offers the perfect balance of elegance and functionality. The great room features a breathtaking two-story vaulted ceiling that fills the space with natural light and creates a dramatic focal point. A stylish staircase leads to a private loft bedroom complete with its own full bath—ideal for guests or older children.
The spacious main-floor master suite is a true retreat, featuring a luxurious freestanding soaking tub, custom tile shower, dual vanities, and an expansive 8′ x 11′ walk-in closet. The open-concept kitchen includes a large eat-in island, a generous walk-in pantry, and convenient access to a covered grilling porch—perfect for outdoor entertaining.
A roomy mudroom connects to a full glass breezeway that leads to the oversized 3-car garage. Above the garage, you’ll find an additional 782 sq. ft. of bonus space featuring a full bathroom and a bunkhouse—offering plenty of flexibility for guests, hobbies, or a home office.
Whether you’re a growing family or simply looking for more space to spread out, this 2,630 sq. ft. barndominium delivers comfort, versatility, and stunning modern farmhouse style.
What is the difference between stock, modified and custom plans?
1. Stock Plan Package
Stock plans are pre-designed house plans available for instant download. A Stock Plan includes everything you need to provide to your banker, material supplier, and builder.
Here is what is included:
- Digital Download (PDF can be printed 24"X 36" Full Size)
- One-time build license (permission to build one house from this plan)
- First Floor Plan
- Second Floor Plan (if applicable)
- Front and Rear 2D Elevations and Details
- Left and Right Side Elevations and Details
- Roof Plan Details
- First & Second Floor Electrical Plans (suggestive layout; final changes made with your local professional)
- First & Second Floor Plumbing Plans (suggestive layout; final changes made with your local professional)
- Footer & Foundation Detail Sheet
- Roof and Floor Joist Framing Detail Sheet
- Doors and Window Schedule
2. Modification Package
Any stock plan can be modified. This option allows for changes to the floor plan only. A modification package includes everything in the Stock Plan Package plus your requested changes. Changes that affect the foundation, roofline, window placement, or exterior elevations will require a redesign or custom quote.
3. Custom Plan Package
A custom plan is designed from scratch based on your ideas, sketches, or goals. You can share your vision in any form—whether it’s a quick sketch, a curated Pinterest board, or a detailed AI rendering of your dream home. Our team will collaborate with you to bring that vision to life at an affordable price. You have the freedom to start with one of our existing plans and modify it, or have a fully custom home designed from the ground up with your guidance every step of the way.
Custom Plan Package includes everything in the Stock Plan Package plus:
- 2 hours of floor plan consulting and review
- 5 hours of junior designer rough draft layout
- 2 revisions after the junior designer draft
- 15-hour block of time for a lead designer
- One-time build license
Add These to Your Plan
CAD FILES
Unlimited Build License
Plan Specifications
Plan Specifications
What's Included in This Plan?
- Digital download (PDF can be printed 24″X36″ full size)
- Floor Plan
- Roof Plan
- Front and Rear Elevation
- Right and Left Elevation
- Electrical & Plumbing Plan
- Foundation Plan
- Roof Framing Plan
- Second Floor I-Joist Plan
- Doors & Windows Schedule
What's Not Included?
House plans do not typically include mechanical, plumbing, or truss drawings. Additionally, some jurisdictions require a local architect or engineer to make adjustments to the plan to comply with local building codes.
We advise you to check with your local building department regarding codes. For more information, visit the "What Plans Include"page.