Barndominium Plan B2145
2145 SQ. FT. BARNDOMINIUM WITH A LOFT AND A 2000 SQ. FT. SHOP
Discover Barndominium Plan B2145, a 3 bedroom, 3 bath barndominium floor plan with open layout, versatile design, and modern barndo living.
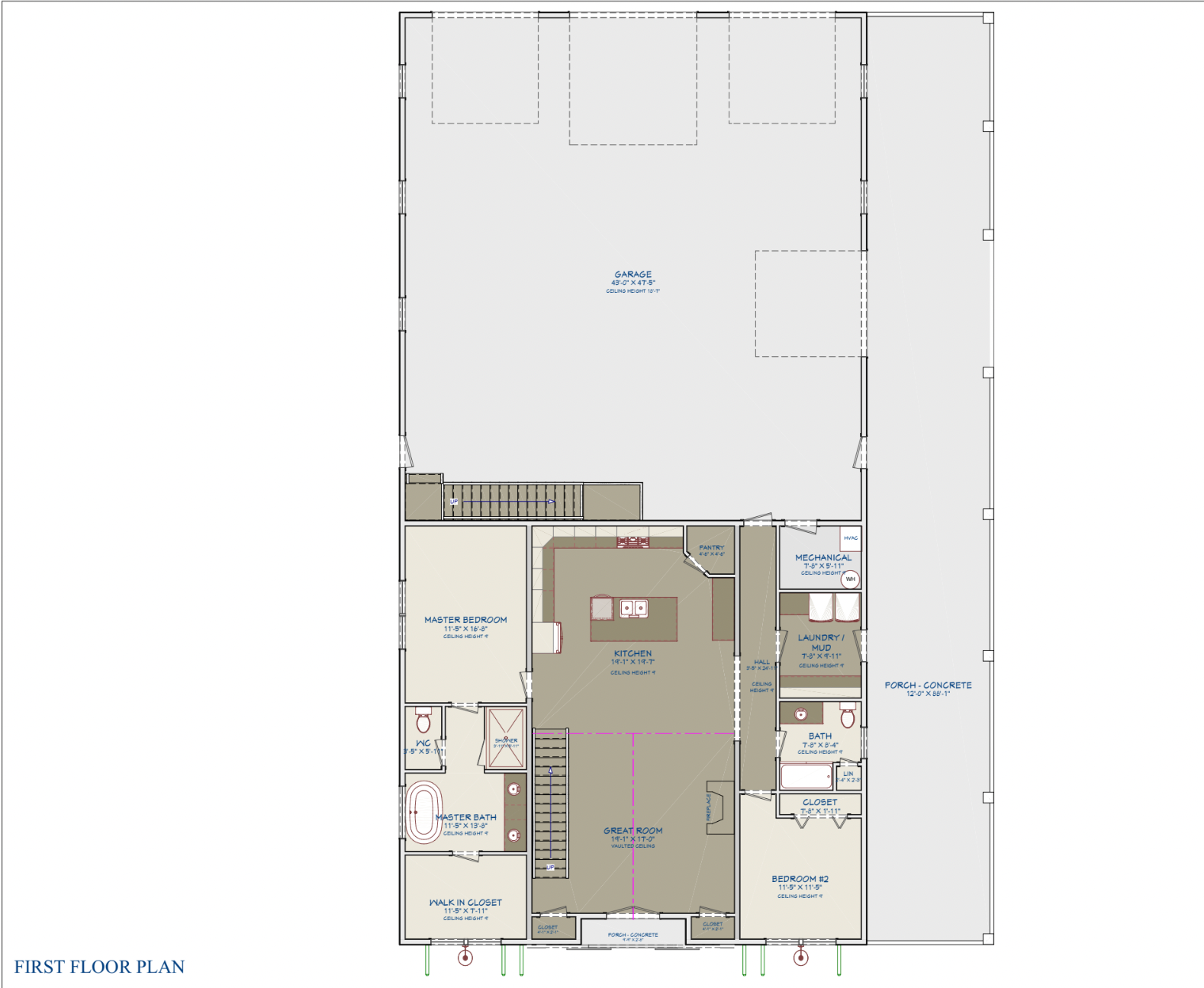
This timeless 3-bedroom, 3-bathroom barndominium offers the perfect blend of functionality, style, and flexibility. The design features a dramatic two-story great room with an open staircase and balcony that overlook the main living space, filling the home with light and a sense of openness.
The main-floor master suite provides a private retreat complete with a freestanding soaking tub, custom tile shower, and a spacious walk-in closet. Upstairs, the loft level includes an oversized bedroom with its own private bath—ideal for guests, older children, or even a studio-style office space.
The kitchen is designed for both beauty and practicality, showcasing floor-to-ceiling built-in cabinetry, an eat-in island, and access to an inviting outdoor dining area beneath a 12′ covered porch—perfect for entertaining or relaxing evenings at home.
Attached to the living area is a massive 2,000 sq. ft. shop/garage that easily accommodates an RV, boat, or multiple oversized vehicles, making it ideal for hobbyists, entrepreneurs, or anyone needing extra storage or workspace.
The BM2145 plan—also known as a “shophouse” or “shouse”—has become a favorite nationwide, from sunny Florida to snowy Michigan, and from the Carolina coasts to the rugged shores of Oregon. One of its best features is its flexibility: it can be built using traditional stick-frame, post-frame, or steel-frame construction with metal siding and a metal roof. No matter how you build it, the design delivers the same stunning look and incredible functionality families love.
Add These to Your Plan
CAD FILES
Unlimited Build License
Plan Specifications
Plan Specifications
What's Included in This Plan?
- Digital download (PDF can be printed 24″X36″ full size)
- Floor Plan
- Roof Plan
- Front and Rear Elevation
- Right and Left Elevation
- Electrical & Plumbing Plan
- Foundation Plan
- Roof Framing Plan
- Second Floor I-Joist Plan
- Doors & Windows Schedule
What's Not Included?
House plans do not typically include mechanical, plumbing, or truss drawings. Additionally, some jurisdictions require a local architect or engineer to make adjustments to the plan to comply with local building codes.
We advise you to check with your local building department regarding codes. For more information, visit the "What Plans Include"page.