Barndominium Plan B2085
A SLEEK BLACK BARNDOMINIUM WITH A BUNK ROOM OVER THE GARAGE
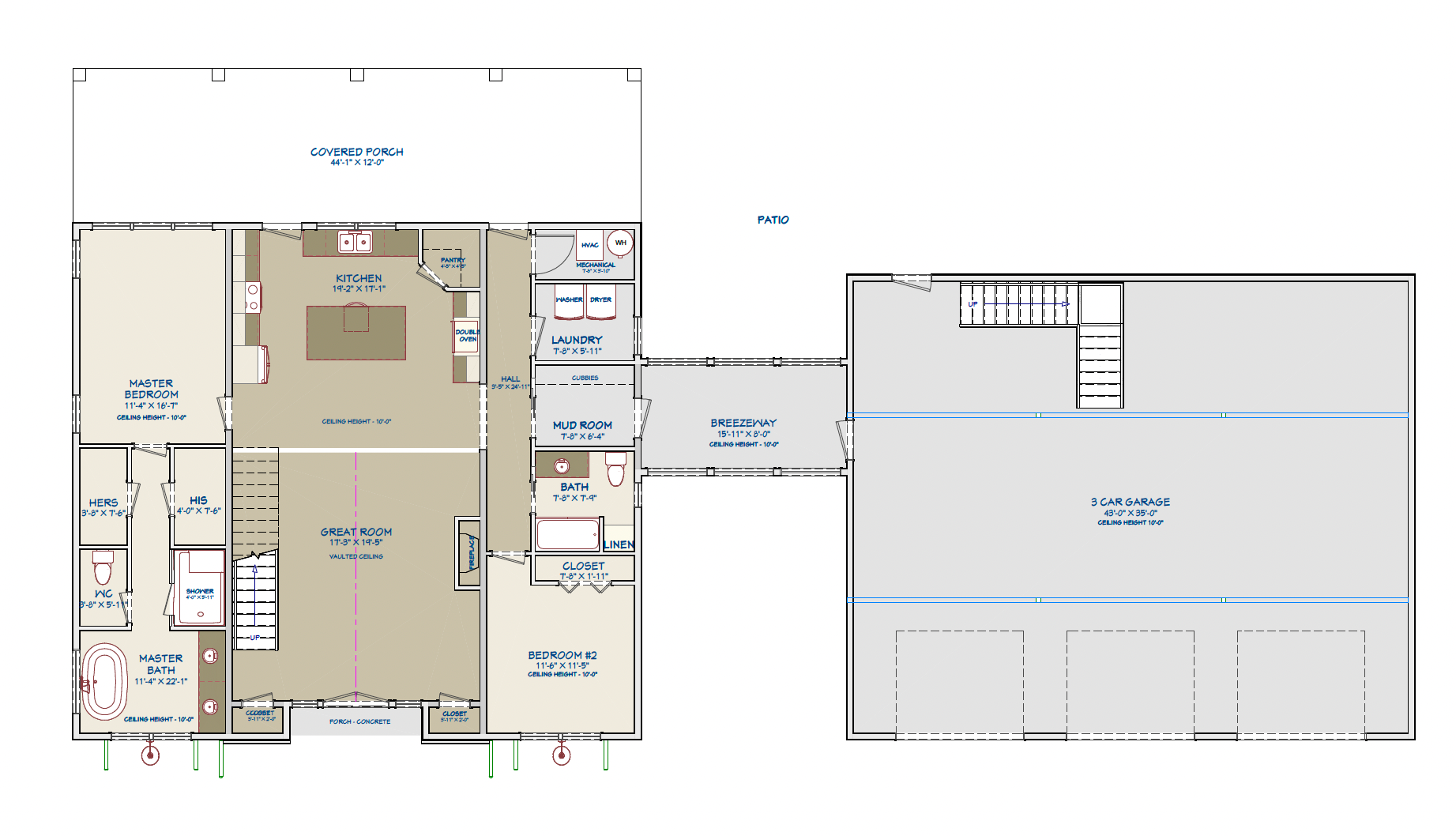
This stunning black barndominium combines modern elegance with functional family living. The heart of the home features a soaring two-story vaulted ceiling in the great room, creating a dramatic open space filled with natural light. A beautiful staircase leads to a private loft bedroom complete with a full bath—perfect for guests or a quiet retreat.
The spacious first-floor master suite offers a luxurious escape, showcasing a custom tile shower, double vanities, a freestanding soaking tub, and separate his-and-hers closets. The open-concept kitchen includes a generous walk-in pantry, a large eat-in island, and convenient access to the grilling porch—ideal for entertaining or family gatherings.
A well-designed mudroom connects the main living area to a full glass breezeway, leading to the oversized three-car garage. Above the garage, you’ll find a versatile 740 sq. ft. bonus area featuring a full bathroom and bunkhouse—perfect for visiting family, teens, or even a home office suite.
Whether you’re raising a family or looking to downsize without sacrificing style or space, this barndominium delivers comfort, functionality, and timeless design.
What is the difference between stock, modified and custom plans?
1. Stock Plan Package
Stock plans are pre-designed house plans available for instant download. A Stock Plan includes everything you need to provide to your banker, material supplier, and builder.
Here is what is included:
- Digital Download (PDF can be printed 24"X 36" Full Size)
- One-time build license (permission to build one house from this plan)
- First Floor Plan
- Second Floor Plan (if applicable)
- Front and Rear 2D Elevations and Details
- Left and Right Side Elevations and Details
- Roof Plan Details
- First & Second Floor Electrical Plans (suggestive layout; final changes made with your local professional)
- First & Second Floor Plumbing Plans (suggestive layout; final changes made with your local professional)
- Footer & Foundation Detail Sheet
- Roof and Floor Joist Framing Detail Sheet
- Doors and Window Schedule
2. Modification Package
Any stock plan can be modified. This option allows for changes to the floor plan only. A modification package includes everything in the Stock Plan Package plus your requested changes. Changes that affect the foundation, roofline, window placement, or exterior elevations will require a redesign or custom quote.
3. Custom Plan Package
A custom plan is designed from scratch based on your ideas, sketches, or goals. You can share your vision in any form—whether it’s a quick sketch, a curated Pinterest board, or a detailed AI rendering of your dream home. Our team will collaborate with you to bring that vision to life at an affordable price. You have the freedom to start with one of our existing plans and modify it, or have a fully custom home designed from the ground up with your guidance every step of the way.
Custom Plan Package includes everything in the Stock Plan Package plus:
- 2 hours of floor plan consulting and review
- 5 hours of junior designer rough draft layout
- 2 revisions after the junior designer draft
- 15-hour block of time for a lead designer
- One-time build license
Add These to Your Plan
CAD FILES
Unlimited Build License
Plan Specifications
Plan Specifications
What's Included in This Plan?
- Digital download (PDF can be printed 24″X36″ full size)
- Floor Plan
- Roof Plan
- Front and Rear Elevation
- Right and Left Elevation
- Electrical & Plumbing Plan
- Foundation Plan
- Roof Framing Plan
- Second Floor I-Joist Plan
- Doors & Windows Schedule
What's Not Included?
House plans do not typically include mechanical, plumbing, or truss drawings. Additionally, some jurisdictions require a local architect or engineer to make adjustments to the plan to comply with local building codes.
We advise you to check with your local building department regarding codes. For more information, visit the "What Plans Include"page.