Barndominium Plan B1853
A STUNNING BARNDOMINIUM WITH A LOFT AND A 2,000 SQ. FT. SHOP
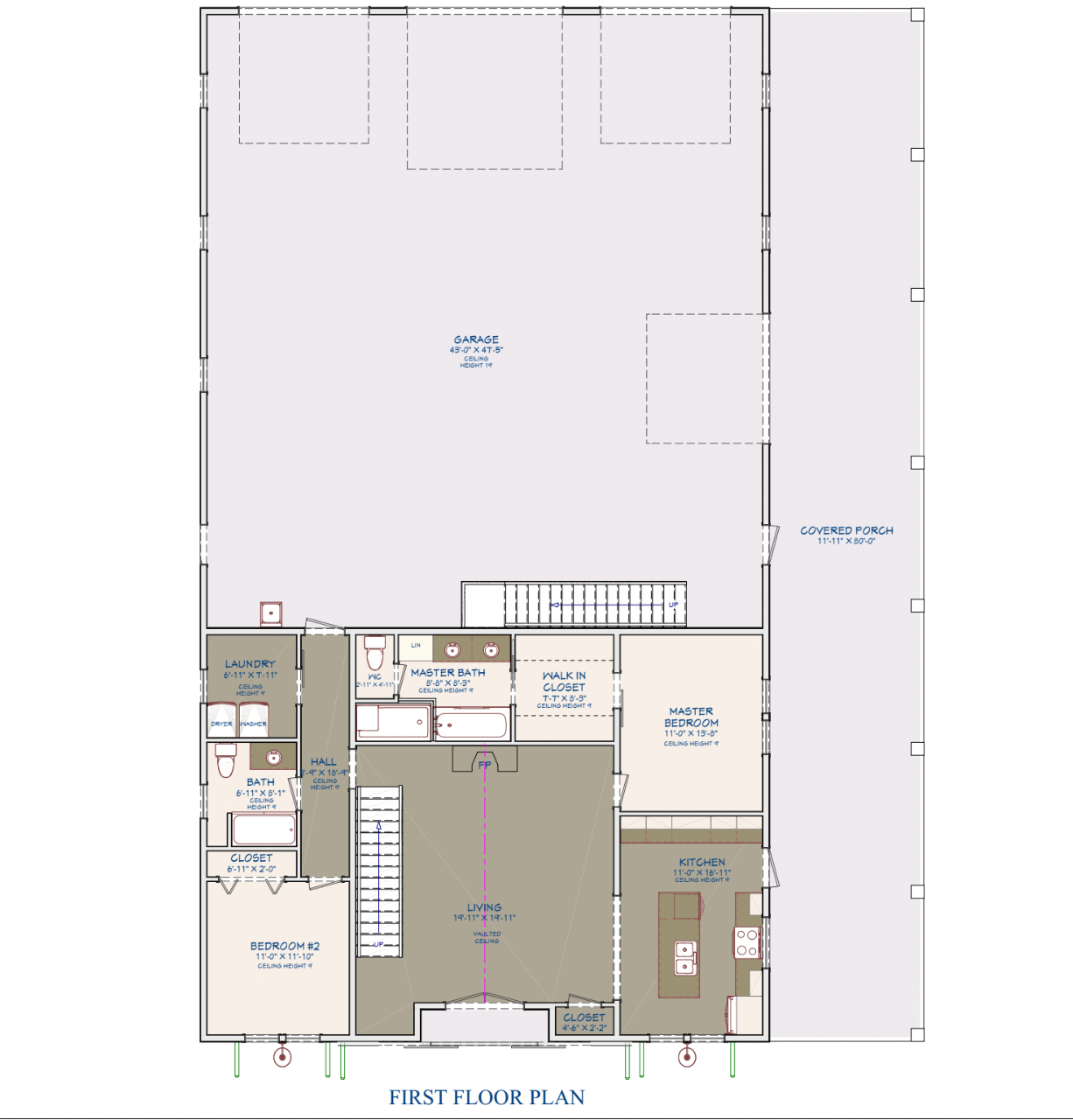
This 44′ x 80′ barndominium perfectly showcases why barndos have become so beloved. It offers the ideal mix of comfortable living and functional workspace. Oversized 10-foot barn doors open into a warm and welcoming living room featuring 9-foot ceilings and a cozy fireplace.
Adjacent to the living area, the galley-style kitchen includes an 8-foot island with seating for four, creating a perfect space for cooking and casual dining. Large glass doors lead to a spacious 12-foot-wide covered porch—ideal for entertaining guests or enjoying quiet outdoor meals.
The master suite feels like a retreat, complete with a roomy walk-in closet, a freestanding soaking tub, and a custom shower. The laundry/mud room is thoughtfully placed near the shop entrance, offering easy access and practicality.
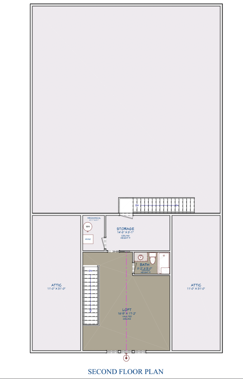
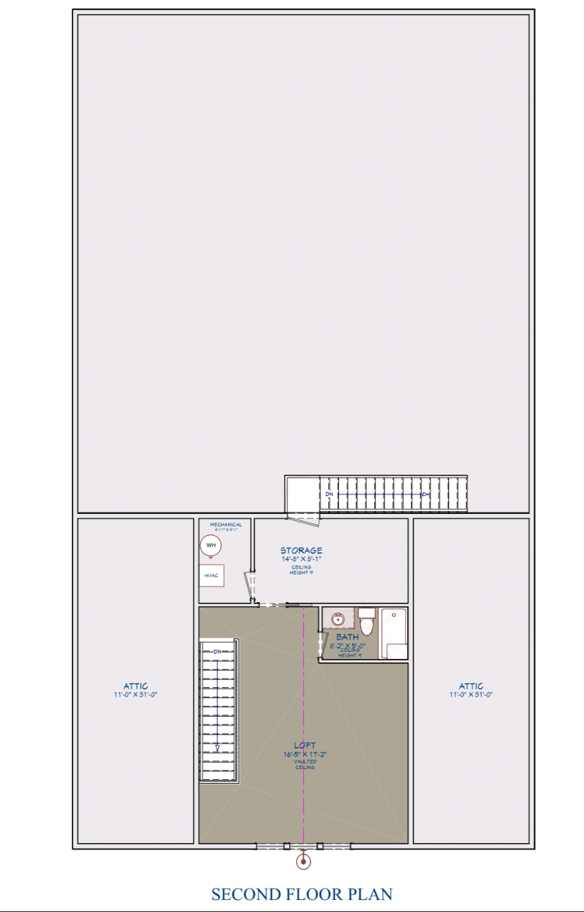
The massive 2,000 sq. ft. shop includes convenient second-floor storage accessible without entering the main home, keeping living areas quiet and private. Upstairs, the loft provides a flexible space that can be used as a single large bedroom, divided into two smaller rooms, or transformed into a fun bunkhouse for guests.
This design embodies the perfect balance of home, work, and play—all under one stylish roof.
Add These to Your Plan
CAD FILES
Unlimited Build License
Plan Specifications
Plan Specifications
What's Included in This Plan?
- Digital download (PDF can be printed 24″X36″ full size)
- Floor Plan
- Roof Plan
- Front and Rear Elevation
- Right and Left Elevation
- Electrical & Plumbing Plan
- Foundation Plan
- Roof Framing Plan
- Second Floor I-Joist Plan
- Doors & Windows Schedule
What's Not Included?
House plans do not typically include mechanical, plumbing, or truss drawings. Additionally, some jurisdictions require a local architect or engineer to make adjustments to the plan to comply with local building codes.
We advise you to check with your local building department regarding codes. For more information, visit the "What Plans Include"page.