Barndominium Plan B1525
A Barndominium with Attitude – Plan BM1525
Barndo 1525 is a bold and stylish 3-bedroom, 2-bath barndominium floor plan designed for those who love to entertain. Its sleek black exterior, paired with a matching metal roof, is beautifully accented by rustic wooden beams and stacked stone pillars—creating a striking modern-rustic look that stands out in any setting.
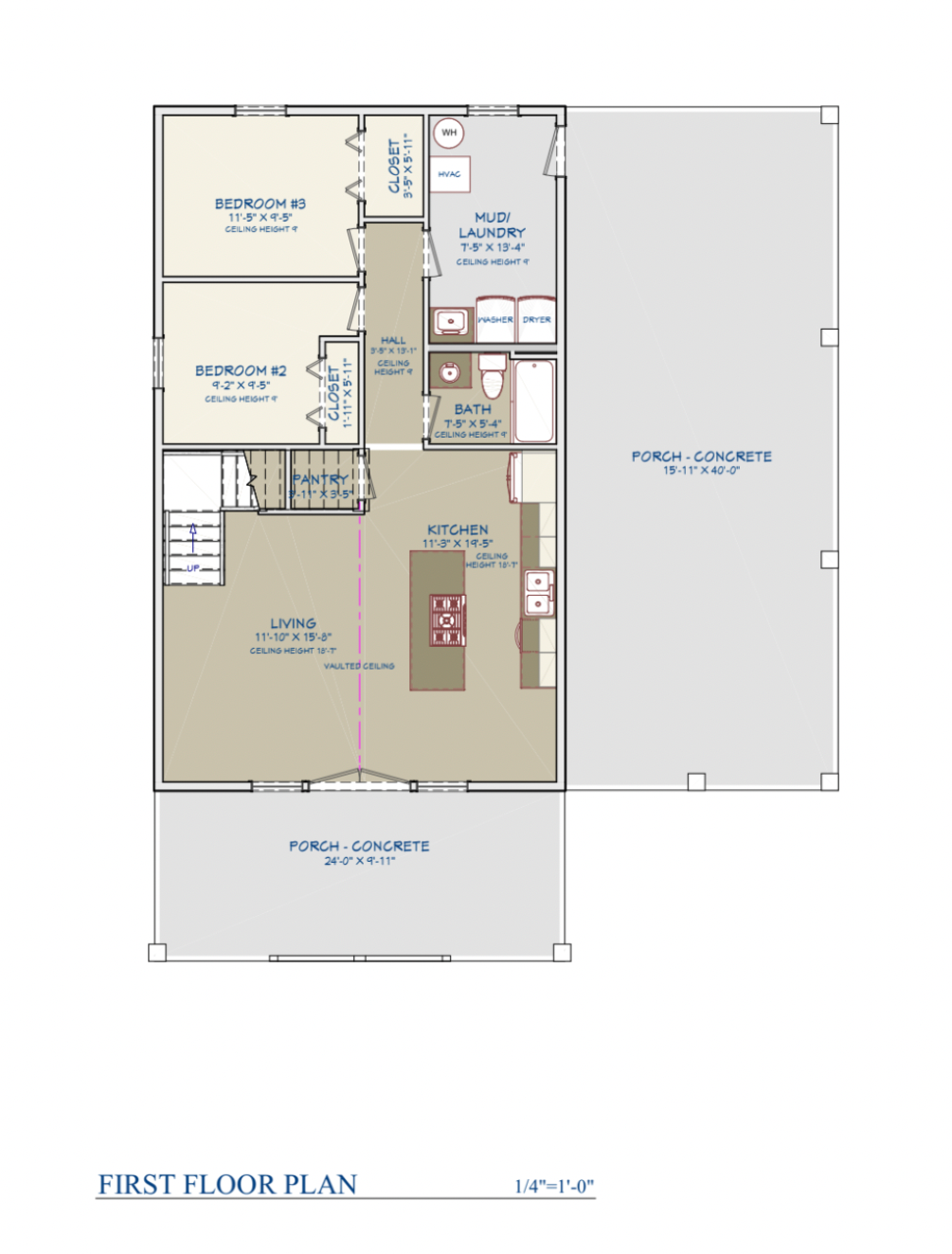
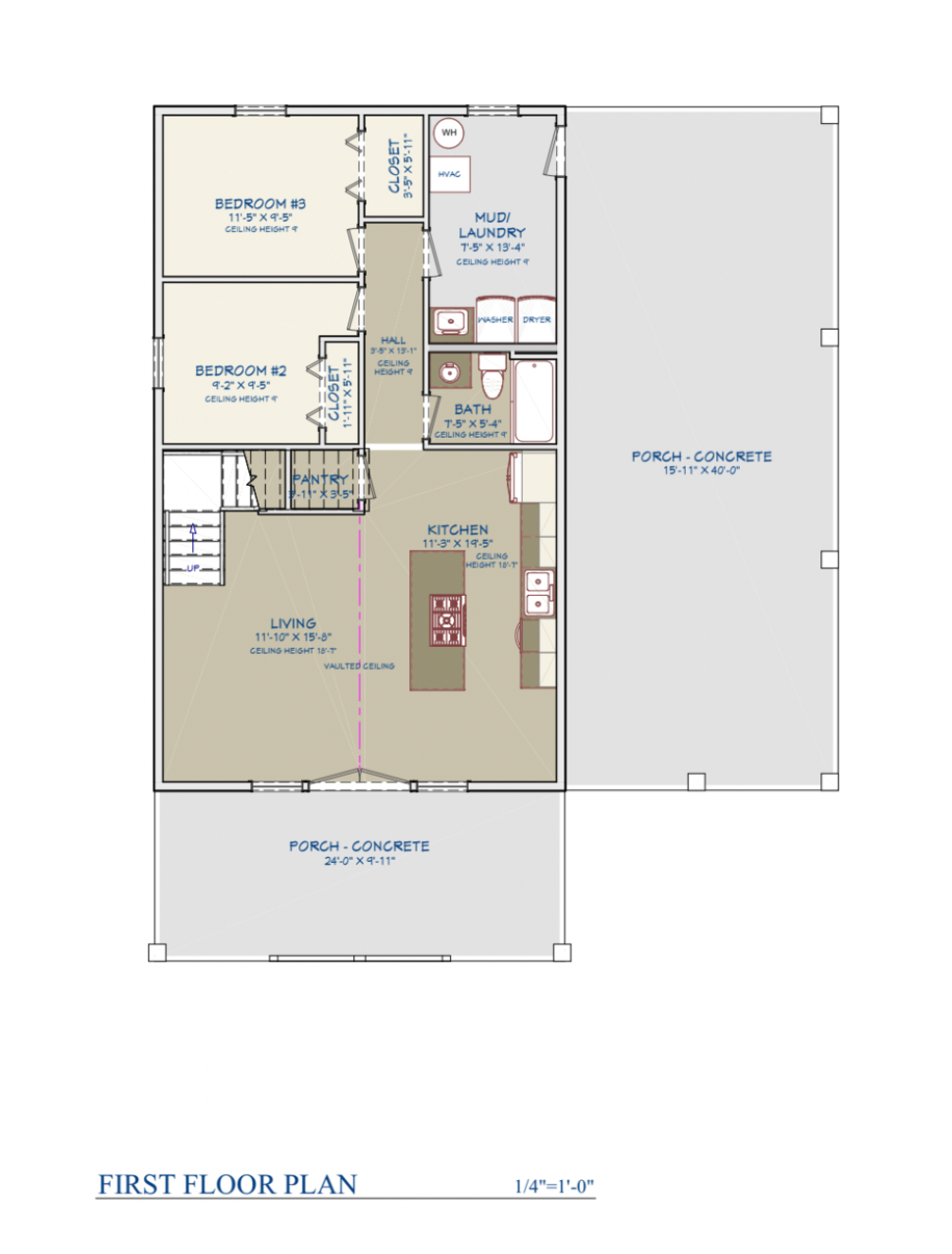
Inside, the open-concept layout features a massive vaulted ceiling that spans the living room and much of the eat-in kitchen, giving the home a spacious and airy feel. Two bedrooms on the main floor share a full bath and each include generously sized closets. The oversized laundry room offers plenty of flexibility—perfect for a mudroom, storage area, or even a dog-washing station.
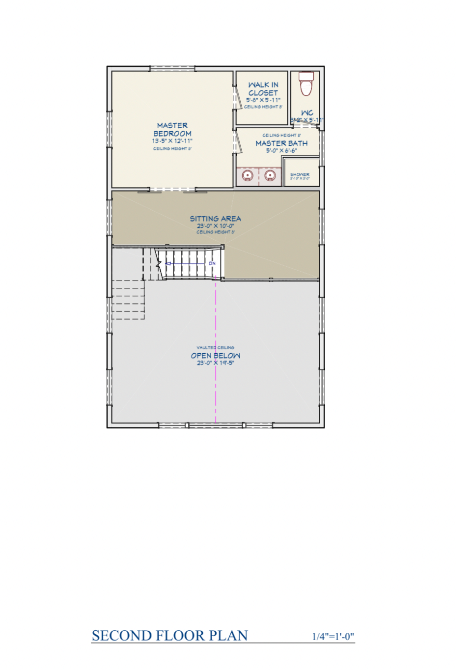
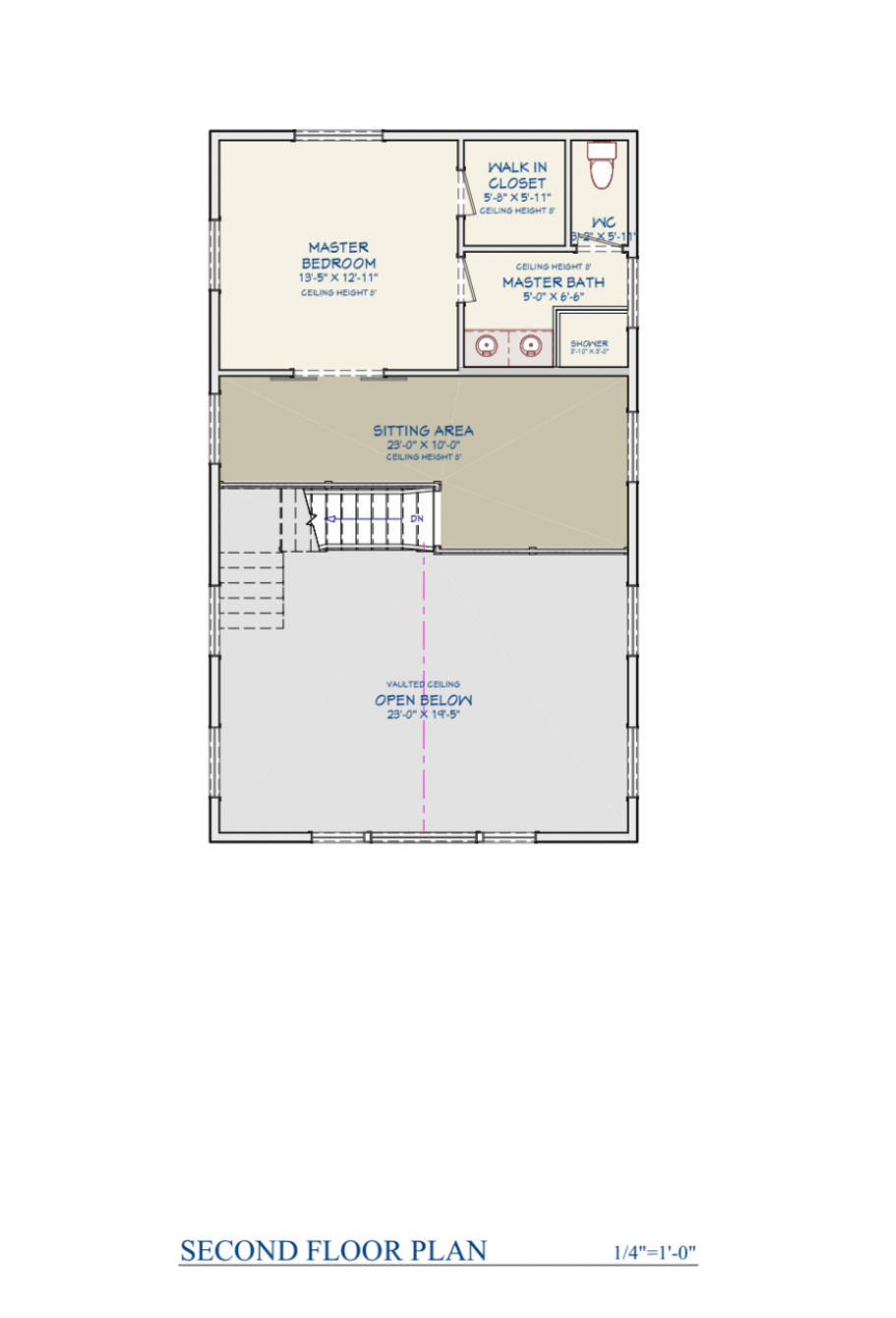
An L-shaped staircase leads to the private master suite, complete with a cozy lounge area overlooking the great room. The master bath features space for an oversized 6-foot shower and a walk-in closet for ample storage.
With its functional layout, dramatic design, and welcoming outdoor spaces, Barndo 1525 is an ideal choice for a young family, a couple looking to downsize, or anyone wanting a modern barndominium with personality and flair.
What is the difference between stock, modified and custom plans?
1. Stock Plan Package
Stock plans are pre-designed house plans available for instant download. A Stock Plan includes everything you need to provide to your banker, material supplier, and builder.
Here is what is included:
- Digital Download (PDF can be printed 24"X 36" Full Size)
- One-time build license (permission to build one house from this plan)
- First Floor Plan
- Second Floor Plan (if applicable)
- Front and Rear 2D Elevations and Details
- Left and Right Side Elevations and Details
- Roof Plan Details
- First & Second Floor Electrical Plans (suggestive layout; final changes made with your local professional)
- First & Second Floor Plumbing Plans (suggestive layout; final changes made with your local professional)
- Footer & Foundation Detail Sheet
- Roof and Floor Joist Framing Detail Sheet
- Doors and Window Schedule
2. Modification Package
Any stock plan can be modified. This option allows for changes to the floor plan only. A modification package includes everything in the Stock Plan Package plus your requested changes. Changes that affect the foundation, roofline, window placement, or exterior elevations will require a redesign or custom quote.
3. Custom Plan Package
A custom plan is designed from scratch based on your ideas, sketches, or goals. You can share your vision in any form—whether it’s a quick sketch, a curated Pinterest board, or a detailed AI rendering of your dream home. Our team will collaborate with you to bring that vision to life at an affordable price. You have the freedom to start with one of our existing plans and modify it, or have a fully custom home designed from the ground up with your guidance every step of the way.
Custom Plan Package includes everything in the Stock Plan Package plus:
- 2 hours of floor plan consulting and review
- 5 hours of junior designer rough draft layout
- 2 revisions after the junior designer draft
- 15-hour block of time for a lead designer
- One-time build license
Add These to Your Plan
CAD FILES
Unlimited Build License
Plan Specifications
Plan Specifications
What's Included in This Plan?
- Digital download (PDF can be printed 24″X36″ full size)
- Floor Plan
- Roof Plan
- Front and Rear Elevation
- Right and Left Elevation
- Electrical & Plumbing Plan
- Foundation Plan
- Roof Framing Plan
- Second Floor I-Joist Plan
- Doors & Windows Schedule
What's Not Included?
House plans do not typically include mechanical, plumbing, or truss drawings. Additionally, some jurisdictions require a local architect or engineer to make adjustments to the plan to comply with local building codes.
We advise you to check with your local building department regarding codes. For more information, visit the "What Plans Include"page.